Daniel Hobbin Estate Agents Torquay
Back to results
Price: £330,000
Listed: January 30, 2026

4 Bedroom Town House for Sale Cliff Mews, Cliff Road, Roundham, Paignton, TQ4 6DJ


  • 4 Bed
  • 2 Bath
  • 1 Reception
  • Parking
  • Garden
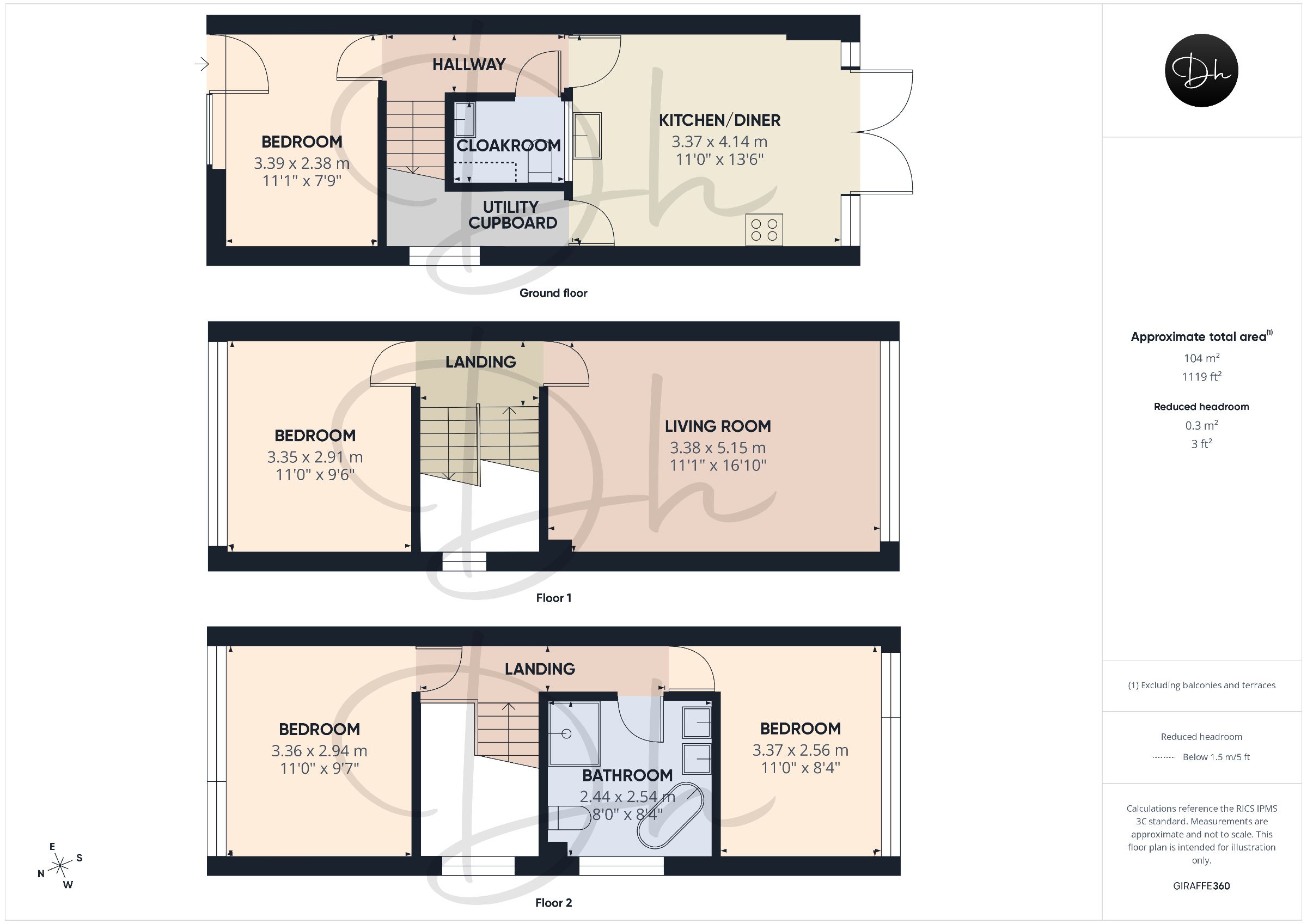
Available Freehold 104 m² / 1,119 ft² Council tax band: C EPC: E

Key Features

Chain-Free Four Bedroom End-of-Terrace Home
Prime Roundham Setting near Harbour & Seafront
Arranged over Three Levels with Sea-View Bedroom
Recently Renovated Throughout to High Standard
Stylish Kitchen/Diner with Integrated Appliances
Generous Living Room with Large Double-Glazed Windows
Luxury Four-Piece Bathroom with His & Hers Vanity
Rare Off-Road Parking for up to Four Vehicles

Description

Set within the highly regarded coastal area of Roundham, this chain-free four bedroom end-of-terrace home occupies an excellent position just moments from Paignton Harbour, the main seafront and the sandy shoreline at Goodrington Beach. With Young's Park and the picturesque coastal footpaths around Roundham Head close at hand, the property is perfectly placed for enjoying Paignton's waterside lifestyle, while remaining within comfortable walking distance of the town centre's shops, cafés and leisure facilities.

Arranged over three levels, the accommodation has been recently renovated to an excellent standard, presenting a fresh, modern finish throughout. Improvements in 2022 include new double-glazed windows, a replacement boiler and a stylish new kitchen. Additionally, there is new carpet and vinyl throughout the property as well as freshly painted walls, making it a ready-to-move-in home.

A particular highlight is the impressive four-piece bathroom suite, featuring a "his and hers" vanity, a freestanding oval bath, separate shower and WC, all complemented by brushed brass taps and fittings for a refined, contemporary feel. The upper-floor bedroom provides a superb vantage point, enjoying attractive sea views across Paignton's promenade.

To the rear, off-road parking is a major advantage, with space for up to four vehicles (two side-by-side and two in tandem), offering rare practicality for a property so close to the coast.

The location is also well served by public transport, with Paignton railway station and local bus services providing convenient links to Torquay, Brixham and destinations across South Devon. Whether as a superb full-time residence, a coastal bolt-hole, or as a investment with strong holiday-let appeal, this is a stand-out opportunity in one of Paignton's most sought-after seaside settings.

Council Tax Band: C (Torbay Council)
Tenure: Freehold
Parking options: Driveway, Off Street
Garden details: Front Garden
Electricity supply: Mains
Heating: Gas Mains
Water supply: Mains
Sewerage: Mains
Broadband: ADSL, Cable, FTTC, FTTP
Broadband options available at the property include:
* Standard broadband (14Mbps download, 1Mbps upload).
* Superfast broadband (48Mbps download, 9Mbps upload).
* Ultrafast broadband (1800Mbps download, 220Mbps upload).
- Networks in the area: Openreach, Virgin Media


The Approach

The property enjoys the benefit of easy access from both the front and rear. From Cliff Mews, where parking is positioned immediately outside, entry is gained directly into the kitchen/dining area, offering convenient day-to-day arrivals. Alternatively, the main frontage is set on Cliff Road, approached via a low-maintenance front garden finished with artificial lawn for year-round ease. As an end-of-terrace home, a useful side pathway provides a direct link between the front and rear elevations, enhancing practicality and accessibility.

Kitchen & Informal Living

The ground floor is arranged to provide a practical and sociable layout, comprising a contemporary kitchen/dining room, a ground-floor bedroom and a cloakroom. Herringbone flooring runs throughout this level, creating a cohesive finish and continuity between spaces. The kitchen has been recently fitted and is presented in a modern style, with pale pastel green wall and base units complemented by worktops and a tiled splashback. A range of integrated appliances includes an eye-level Bosch oven, induction hob, under-counter fridge and freezer, along with a washing machine and dishwasher. A useful utility cupboard provides additional storage and incorporates space and plumbing for a tumble dryer. Finishing touches include a striking black composite sink with drainer. There is ample space for a dining table, making this an ideal room for everyday living and entertaining, while two double-glazed doors open directly to the rear, enhancing natural light and offering easy access outside.

Inner Hallway

A door from the kitchen/dining room opens into the inner hallway, which provides access to the staircase rising to the first-floor accommodation. From here, doors lead to the ground-floor bedroom and the cloakroom, creating a convenient and well-connected layout. The space is warmed by a central heating radiator and benefits from a bright, airy feel, with natural light filtering through from the double-glazed window on the half-landing above.

Cloakroom

The cloakroom is finished in a sleek, contemporary style and fitted with a low-level WC and a space-saving corner vanity unit, topped with a modern countertop basin and complemented by brushed brass fittings. A tiled splashback and work surface add both practicality and a polished look. Further features include a wall-mounted heated towel rail, large-format floor tiling, and a useful built-in storage cupboard for everyday essentials.

Ground Floor Bedroom

The ground floor is completed by a well-proportioned double bedroom, presented in neutral tones and served by a central heating radiator. A double-glazed window and an additional glazed door open onto the front garden, creating a pleasant outlook and providing an ideal spot to step out and enjoy a morning coffee.

First Floor Accommodation

Stairs rise to the first-floor landing, which is naturally bright thanks to two double-glazed windows on the half-landings. This level offers a well-balanced arrangement, including a generously sized living room positioned to the rear, enjoying large double-glazed windows with a radiator fitted beneath. Also on this floor is a further double bedroom to the front aspect, featuring a double-glazed window and radiator, providing comfortable and versatile accommodation.

Second Floor Accommodation

The second floor provides two well-proportioned bedrooms, both enjoying excellent natural light. The front bedroom is a king size and benefits from attractive sea views towards Paignton's promenade through its double-glazed windows, while the rear bedroom is equally well presented, with double glazing to the rear aspect. Completing this level is an exceptional four-piece bathroom, finished with large-format tiling to both walls and floors and professionally fitted to a high standard. The suite includes a freestanding oval bath with a brushed brass central mixer. It also includes a striking "his and hers" vanity with twin oval basins and coordinating brushed brass fixtures. Further features comprise a corner shower enclosure with a contrasting black frame and electric shower, a low-level WC, and a wall-mounted heated towel rail. An obscured double-glazed window is set within a deep recess, creating a generous sill that doubles as a practical shelving area.

These particulars do not constitute any part of an offer or a contract. All statements contained in these particulars are made without responsibility on the part of Daniel Hobbin Estate Agents Limited. Where every attempt has been made to ensure the accuracy of the floorplan contained here, any areas, measurements or distances are approximate. The text, photographs and plans are for guidance only and are not necessarily comprehensive. It should not be assumed that the property has all necessary planning, building regulations or other consents. Daniel Hobbin Estate Agents Limited have not tested any services, equipment or facilities. Any intending purchaser must satisfy himself/herself by inspection or otherwise as to the correctness of each of the statements contained in these particulars.

Property Valuations Torbay
Thinking of selling in Torbay?
Take advantage of our free property valuation service to discover how much your home is worth. When you are ready to sell, benefit from our competitive 1% + VAT fee.
Free Valuation