
3 Bedroom Terraced House for Sale Dower Road, Torquay, TQ1 4JJ
- 3 Bed
- 1 Bath
- 1 Reception
- Garden
Useful Links
Key Features
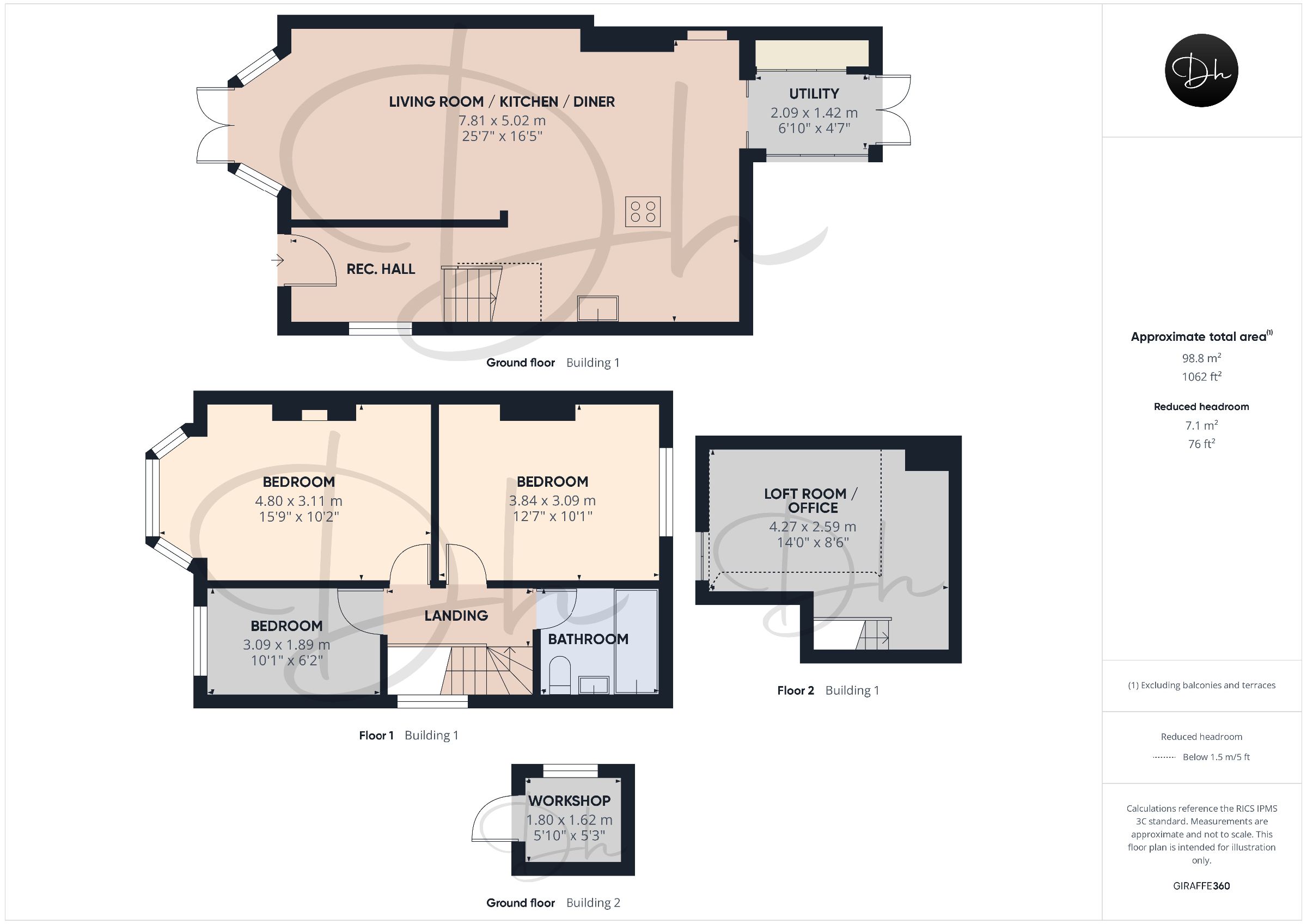
Description
Positioned within easy reach of St Marychurch and Babbacombe, this striking three-bedroom home has been comprehensively refurbished to an exceptional standard.The home's exterior has been fully re-rendered with advanced silicone technology, providing a crisp aesthetic and long-lasting durability.
At the heart of the home is an expansive open-plan living space, seamlessly connecting the kitchen, dining, and lounge areas. The kitchen is a true highlight, featuring bespoke cabinetry with abundant storage, a feature island with breakfast bar, and a suite of high-quality integrated appliances. A separate utility room continues the sleek design, with full-height cabinetry and direct access to the garden. The lounge is bathed in natural light from a walk-in bay with French doors opening onto the front terrace.
Upstairs, three well-proportioned bedrooms include two generous doubles. The bathroom is tastefully styled, combining rustic character with modern comforts such as underfloor heating. A cleverly converted loft adds valuable flexibility, providing a bright and practical home office with excellent storage tucked into the eaves.
Outside, the landscaped rear garden offers a welcoming retreat, complemented by a versatile outbuilding with power and lighting.
The property has also been modernised throughout with a complete rewire to the latest 18th edition in compliance with new building regulations. It also has upgraded plumbing, and the installation of a smart heating and lighting system, allowing tailored scenes to suit any occasion.
Council Tax Band: B (Torbay Council)
Tenure: Freehold
Garden details: Rear Garden
Broadband: ADSL, Cable, FTTC, FTTP
Broadband options available at the property include:
* Standard broadband (18Mbps download, 1Mbps upload).
* Superfast broadband (80Mbps download, 20Mbps upload).
* Ultrafast broadband (1800Mbps download, 220Mbps upload).
- Networks in area - Openreach, Virgin Media
The Approach
Situated on Dower Road, the property immediately makes an impression with its striking white high-tech render, lending a sleek and contemporary aesthetic. To the front, a neatly block-paved forecourt provides a refined entrance, complemented by slate-topped steps that ascend towards a sheltered storm porch. The double-glazed entrance door opens into a welcoming reception hall, elegantly appointed with Karndean LVT flooring. A distinctive feature is the bespoke radiator bench positioned beneath an opaque side window, the radiator itself finished in a durable anthracite powder coating. From here, the staircase rises to the first floor, while open access flows naturally into the principal living area, setting the tone for style and quality throughout the home.Contemporary Kitchen & Dining Hub
The kitchen continues with Karndean LVT flooring and presents an array of matte charcoal grey wall and base units. These units are topped with contrasting white worktops and complemented by striking mirrored splashbacks. Generous provisions for storage include innovative drawer-in-drawer solutions, ensuring a highly functional layout. At the heart of the space, a central island serves as a culinary hub, incorporating further cupboards and drawers beneath, while the extended worktop creates dual breakfast bar seating areas. Overhead, mood lighting accentuates its presence. Integrated within the island is a premium digitally operated oven alongside a flush induction hob with four zones, including a versatile 'bridge' function combining two zones into one. Further integrated appliances feature a near-full-height fridge and a built-in dishwasher, while a deep-set one-and-a-half stainless steel sink, with glass surround and flush drainer, completes this thoughtfully designed kitchen.Practical Utility Room
Adjoining the kitchen, an open doorway leads into a well-planned utility space where the Karndean LVT flooring continues for a seamless finish. The utility is fitted with full-height cabinetry that echoes the kitchen's contemporary design, providing generous storage solutions. Integrated appliances include a built-in freezer, washing machine, and tumble dryer, while the gas-fired Promax combi boiler is neatly concealed within the cabinetry for a streamlined appearance. Double-glazed doors open directly to the garden, ensuring both functionality and convenience.Light-Filled Living Space
The living room continues the seamless flow of Karndean LVT flooring and is centred around a striking contemporary media wall, clad to create an attractive focal point. A walk-in double-glazed bay window draws in an abundance of natural light and opens directly onto the smart block-paved terrace at the front, an inviting spot to enjoy a morning coffee. Further enhancing the design, exposed brickwork to either side of the bay provides a stylish contrast to the interior décor.Comfortable and Versatile Bedrooms
Ascending to the first floor, the landing is naturally lit by an opaque side window and provides access to the loft via a hatch with a pull-down ladder. The loft itself is fully boarded and walled, currently utilised as a practical home office. From the landing, contemporary internal doors open to three bedrooms and the family bathroom. The principal bedroom, a spacious double at the front of the property, retains the original exposed timber flooring. It is enhanced by a walk-in double-glazed bay window that fills the room with light while a tall, vertical powder-coated radiator adds a modern touch. The second bedroom, also a generous double, overlooks the rear and benefits from an opaque window and an exposed brick feature wall for added character. The third bedroom, currently serving as a dressing room, is a well-proportioned single with a front-facing double-glazed window.Characterful Modern Bathroom
The first floor is served by a stylish and distinctive bathroom, illuminated by twin Velux windows that provide excellent natural light. Industrial-inspired design is blended with modern convenience, featuring exposed brickwork alongside large-format concrete-effect tiling, all enhanced by underfloor heating. A contemporary white suite includes a bath with overhead rainfall power shower, additional body jets, and a handheld attachment, enclosed by a glazed screen. Complementing this is a wall-mounted wash basin with sleek taps, practical niche storage beneath, and a concealed-cistern WC. The natural wood-effect finish to the bath panel and shelving introduces warmth, perfectly balancing the industrial character of the space.Private Low-Maintenance Garden Retreat
To the rear, the property enjoys a private and secure garden, fully enclosed to create a safe retreat. Designed with ease of maintenance in mind, the space features artificial grass framed by neat gravel borders and timber-lined pathways. A fixed wooden bench provides a practical seating solution, while a useful garden workshop offers excellent storage. Modern in style yet simple to maintain, the garden is equally suited for quiet relaxation or hosting family and friends. A rear gate affords direct access to the private lane that runs parallel with Dower Road, adding everyday practicality.These particulars do not constitute any part of an offer or a contract. All statements contained in these particulars are made without responsibility on the part of Daniel Hobbin Estate Agents Limited. Where every attempt has been made to ensure the accuracy of the floorplan contained here, any areas, measurements or distances are approximate. The text, photographs and plans are for guidance only and are not necessarily comprehensive. It should not be assumed that the property has all necessary planning, building regulations or other consents. Daniel Hobbin Estate Agents Limited have not tested any services, equipment or facilities. Any intending purchaser must satisfy himself/herself by inspection or otherwise as to the correctness of each of the statements contained in these particulars.
Useful Links
