Daniel Hobbin Estate Agents Torquay
Back to results
Offers Over: £700,000
Listed: August 11, 2025

5 Bedroom Detached House for Sale Ilsham Road, Torquay, TQ1 2JD


  • 5 Bed
  • 2 Bath
  • 2 Reception
  • Parking
  • Garden
Available Freehold 202 m² / 2,174 ft² Council tax band: G EPC: C

Key Features

Principal Bedroom with En-Suite
Substantial Detached Home in Prime Wellswood Location
Flexible 5-Bedroom Layout with 2 Bathrooms
Dual-Aspect Lounge with Garden Access
Spacious Kitchen with Utility & Breakfast Bar
Private Level Garden with Paved Sun Terrace
Detached Double Garage with Power & Lighting
Driveway Parking for Several Vehicles

Description

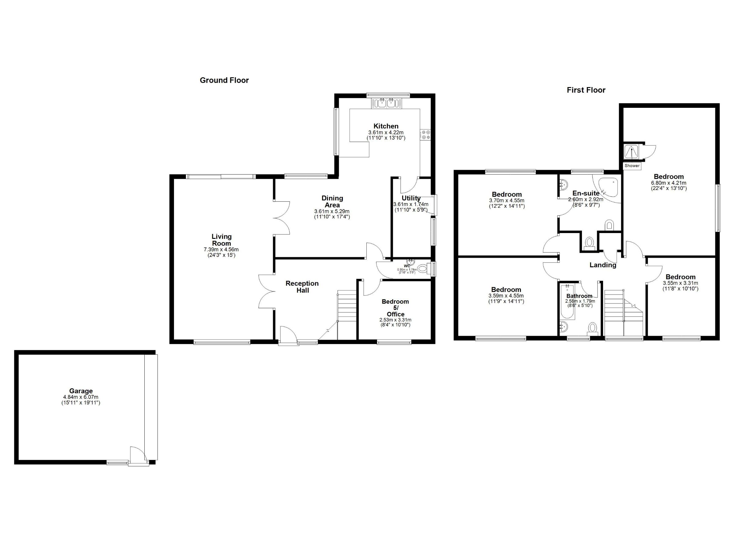
Enjoying a prime position within walking distance of Wellswood village and the picturesque beaches of Meadfoot and Anstey's Cove, this substantial detached residence presents a rare opportunity to create a superb family home in one of Torquay's most desirable settings. The property boasts generous proportions throughout, with a total internal floor area of approximately 2,174 sq. Ft (202 sq. m), and benefits from delightful outlooks, easy access to coastal paths and green spaces, and convenient proximity to Torquay harbour and seafront.

Set back behind a private driveway with ample parking for several vehicles, including space for a motorhome or boat, the house is approached via a welcoming entrance. It features a spacious hallway that leads to a dual-aspect living room with direct access to a paved garden terrace, ideal for entertaining or relaxing outdoors. The ground floor also includes a separate dining room, a well-proportioned kitchen with an adjoining utility room, a cloakroom, and a versatile additional room, suitable for use as a fifth bedroom or home office.

Upstairs, the accommodation comprises four generously sized bedrooms, including a principal suite with an expansive en-suite bathroom, along with a large family bathroom. While the interiors would benefit from modernisation, the property offers a well-balanced and highly flexible layout that can be tailored to suit a range of lifestyle needs.

Outside, the enclosed rear garden is predominantly level and offers a private, secure environment with a paved terrace and mature borders. To the front, a sizeable forecourt leads to a detached double garage, providing further parking and storage options.

With the natural beauty of Ilsham Green, the South West Coast Path, and a wealth of local amenities on the doorstep, and with excellent transport links to Exeter and London Paddington via Torquay station, this is an exceptional opportunity to secure a home of scale and potential in an outstanding coastal location.

Council Tax Band: G (Torbay Council)
Tenure: Freehold
Parking options: Driveway, Garage
Garden details: Rear Garden
Electricity supply: Mains
Heating: Gas Mains
Water supply: Mains
Sewerage: Mains
Broadband: ADSL, FTTC, FTTP
Broadband options available at the property include:
* Standard broadband (6Mbps download, 0.8Mbps upload).
* Superfast broadband (80Mbps download, 20Mbps upload).
* Ultrafast broadband (1800 Mbps, 220 Mbps).
- Networks in the area: Openreach


Entrance

COVERED ENTRANCE
With pillars, tiled roof and outside light. UPVC front door with obscure glazed inset and matching side screen into:

Hallway

SPACIOUS HALLWAY
2 x Radiators. Stairs rising to first floor accommodation. Large walk-in understairs cupboard. 2 x Glazed double opening doors into:

Living room

Dual aspect with UPVC double glazed bow window to front and room width UPVC sliding patio doors leading out onto the rear garden terrace. 3 x Radiators. T.V. aerial point. Raised tiled hearth with brick inset. 2 Wooden doors with obscure glazed panels into:

Dining room

UPVC double glazed window to rear overlooking the garden. 2 x Radiators. T.V. aerial point.

Kitchen

Worksurfaces with inset double sink and drainer unit with storage cupboards beneath. Matching range of eye-level units. Feature brick-built plinth and worktop over forming a breakfast bar. Part tiled walls. Electric hob and oven with extractor fan over. UPVC double glazed window overlooking the rear garden. UPVC double glazed window to side.

Utility room

Wall mounted Gloworm boiler. Space and plumbing for washing machine. Space for tumble dryer. High level obscure glazed window to side. UPVC door with obscure glazed inset leading out to the garden.

Cloakroom

Low level W.C. Wall mounted wash basin with tiled splashback. Radiator. Obscure glazed window to side.

Bedroom five/study

UPVC double glazed window to front. Radiator.

Landing

UPVC double glazed window to front. Hatch to roof space. Built-in storage cupboard housing the lagged cylinder.

Bathroom

Panelled bath with tiled surrounds and shower attachment. Pedestal wash basin. Low level W.C. Radiator. Part tiled walls. UPVC obscure glazed window to front.

Bedroom one

UPVC double glazed window to side. Radiator. 2 x T.V. aerial points. Pedestal wash basin with tiled splashback. Fully tiled enclosed cubicle with shower, glazed sliding door and extractor fan.

Bedroom two

UPVC double glazed window to rear with a lovely view of the garden. Radiator. T.V. aerial point. Through to:

En-suite

Corner bath with mixer tap and shower attachment. Pedestal wash basin. Low level W.C. Bidet. Part tiled walls. 2 x Radiators. UPVC obscure glazed window to rear.

Bedroom three

UPVC double glazed window to front. Radiator. T.V. aerial point.

Bedroom four

UPVC double glazed window to front. Radiator.

OUTSIDE

The property is approached via a wooden gate opening to a sweeping tarmac driveway and forecourt with PARKING for several vehicles, plus a motorhome/boat. The adjoining garden comprises of raised brick borders and is enclosed by natural stone walling. Steps from the forecourt rise to a pedestrian gate leading onto Ilsham Road. DOUBLE GARAGE 19'11" x 15'11" (6.07m x 4.84m) Electric door. Inspection pit. UPVC windows and UPVC door to side. Power and light. A pathway with an adjoining lawn at the side leads to the rear, where the large, level garden is enclosed by established hedging providing a high degree of privacy. The main garden is laid to lawn with surrounding trees and shrubbery, and there is a good size raised paved terrace overlooking the lawn, a perfect spot to relax and enjoy the peaceful ambience. To the side, a pathway with adjoining borders lead back around to the front of the property.

These particulars do not constitute any part of an offer or a contract. All statements contained in these particulars are made without responsibility on the part of Daniel Hobbin Estate Agents Limited. Where every attempt has been made to ensure the accuracy of the floorplan contained here, any areas, measurements or distances are approximate. The text, photographs and plans are for guidance only and are not necessarily comprehensive. It should not be assumed that the property has all necessary planning, building regulations or other consents. Daniel Hobbin Estate Agents Limited have not tested any services, equipment or facilities. Any intending purchaser must satisfy himself/herself by inspection or otherwise as to the correctness of each of the statements contained in these particulars.

Property Valuations Torbay
Thinking of selling in Torbay?
Take advantage of our free property valuation service to discover how much your home is worth. When you are ready to sell, benefit from our competitive 1% + VAT fee.
Free Valuation